• About
  • Selected Works

Sean Jackson

Interior Architecture

  • About
  • Selected Works

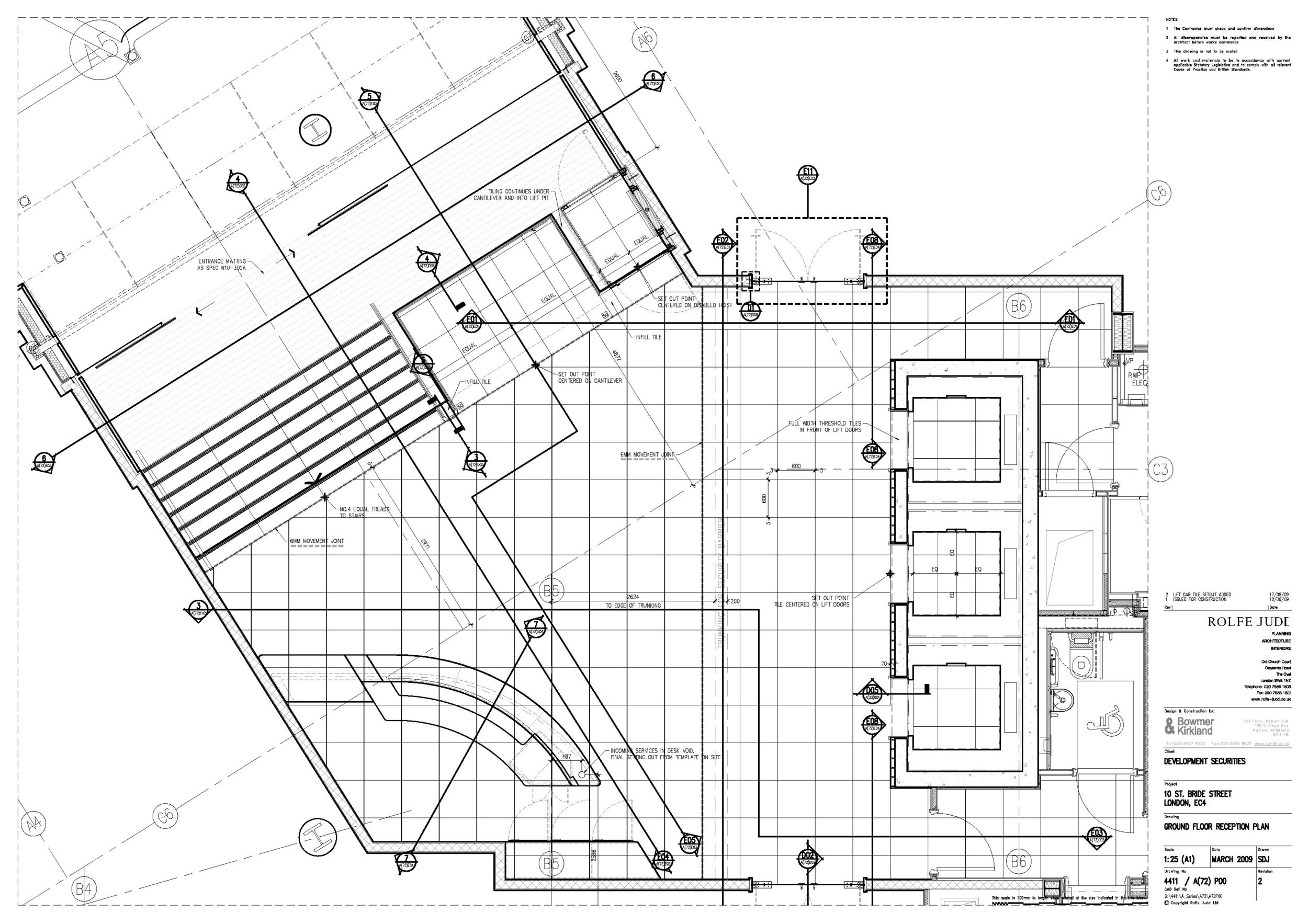
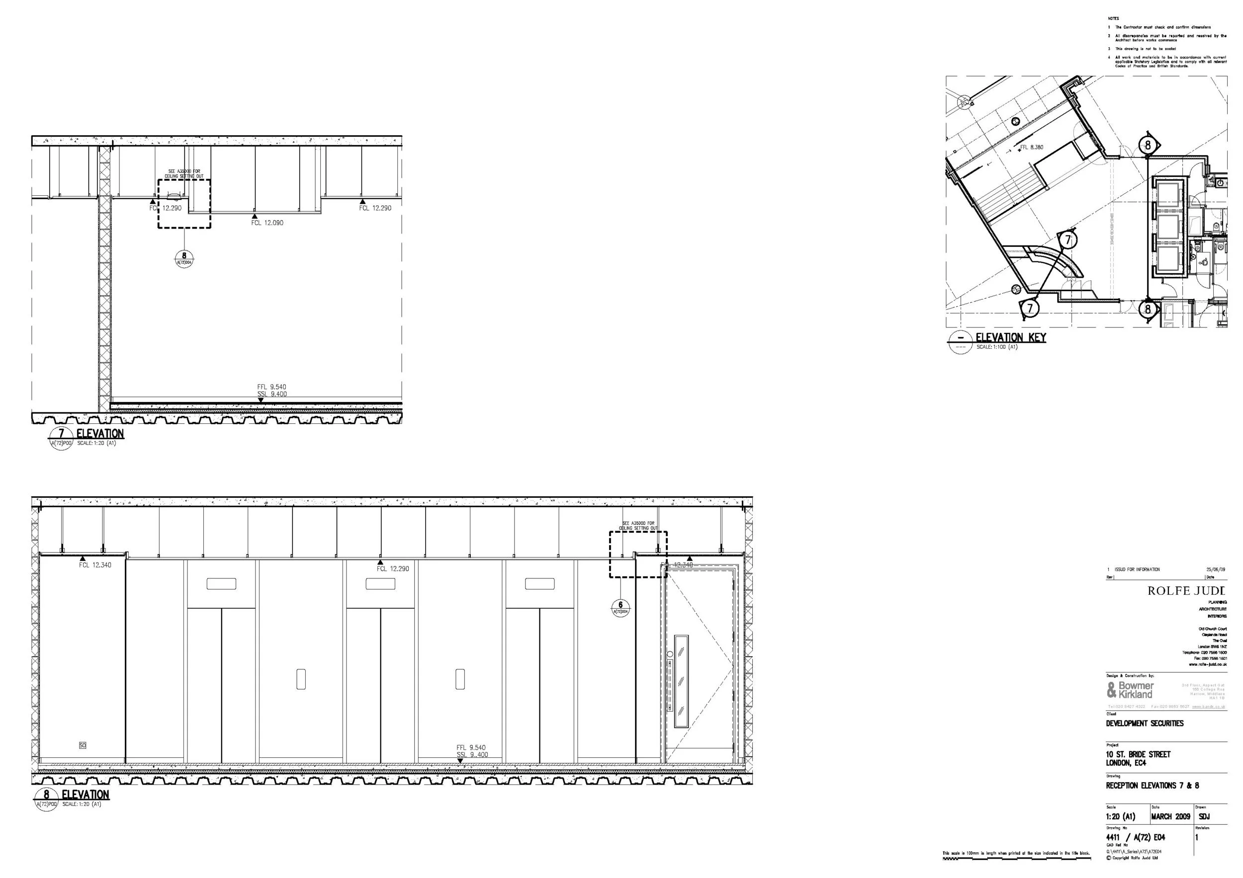
10 St Bride Street

Interior Architectural/Technical Designer

5200m² of new build commercial office & restaurant/retail accommodation in the Ludgate Circus conservation area off Fleet Street.

Part retained facade office development over 6 floors within a conservation area

Designed reception, WC’s, stair cores and lift car interiors

Produced door sets, ironmongery, lighting, signage, dry lining, and space planning packages

Assisted on structural steel co-ordination, cladding, and external works

10 St Bride Street
External Junction of Retained and New Facades
10 ST BRIDE_017.jpg
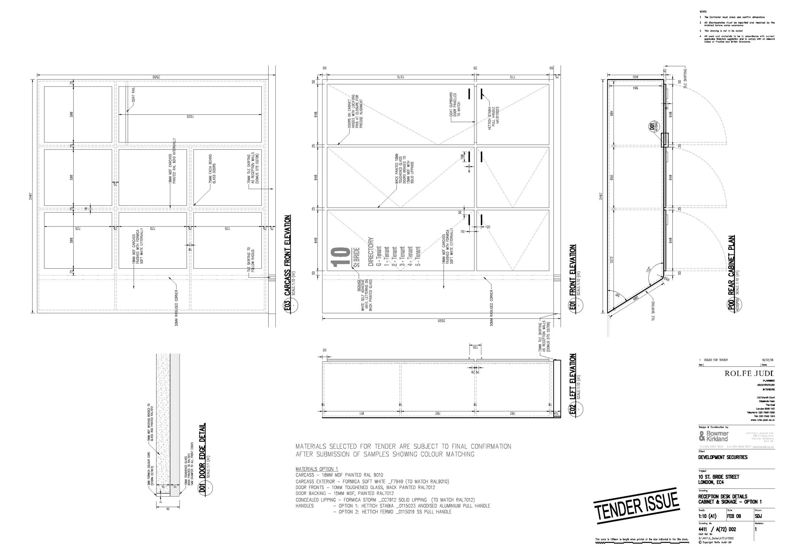
Reception
Reception Desk
10 ST BRIDE_026.jpg
WC's & Vanities
 Detail of the vanity floating off the front of the splashback
10 ST BRIDE_032.jpg
St Bride Street Design
Presentation Boards
sk(72) Reception_ceiling sketches_Page_3.jpg
sk(72)D01_floor plan [B]_Page_1.jpg
sk(72)D01_floor plan [B]_Page_2.jpg
Technical Drawings
Binder1_Page_02.jpg
Binder1_Page_03.jpg
Binder1_Page_04.jpg
Binder1_Page_06.jpg
Binder1_Page_07.jpg
Binder1_Page_08.jpg
Binder1_Page_10.jpg
Binder1_Page_11.jpg
Binder1_Page_12.jpg
Binder1_Page_13.jpg
Binder1_Page_14.jpg
Binder1_Page_16.jpg
Binder1_Page_18.jpg
Binder1_Page_19.jpg
Binder1_Page_21.jpg