• About
  • Selected Works

Sean Jackson

Interior Architecture

  • About
  • Selected Works

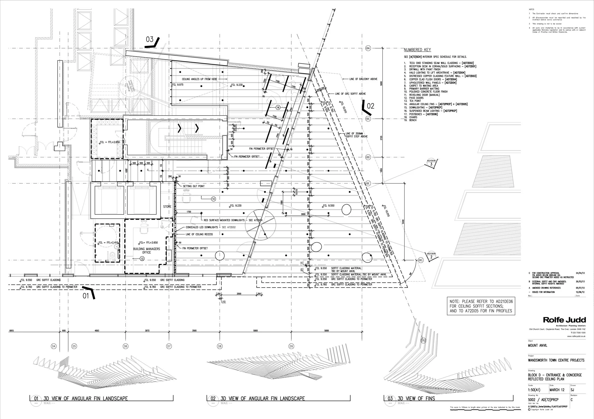
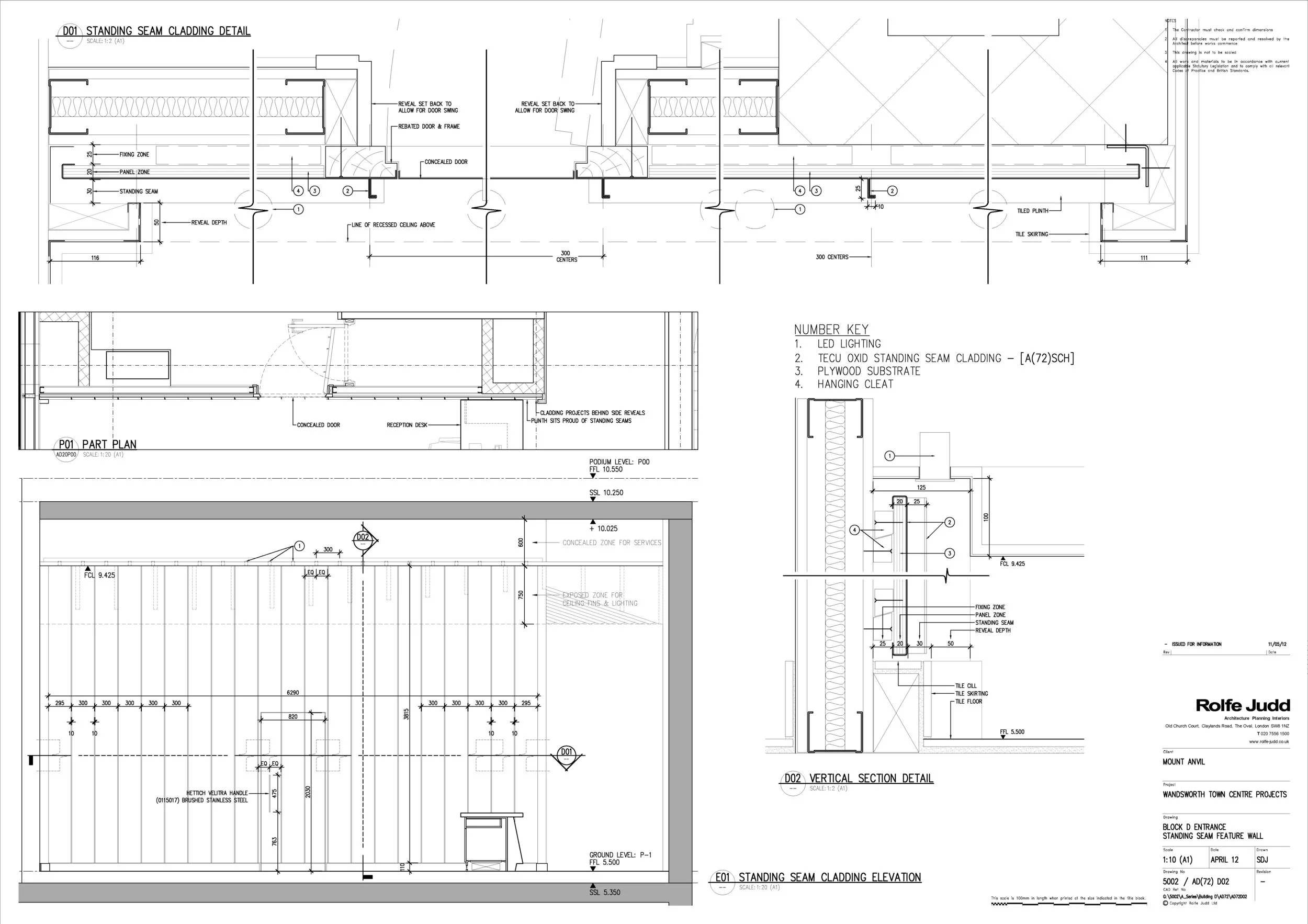
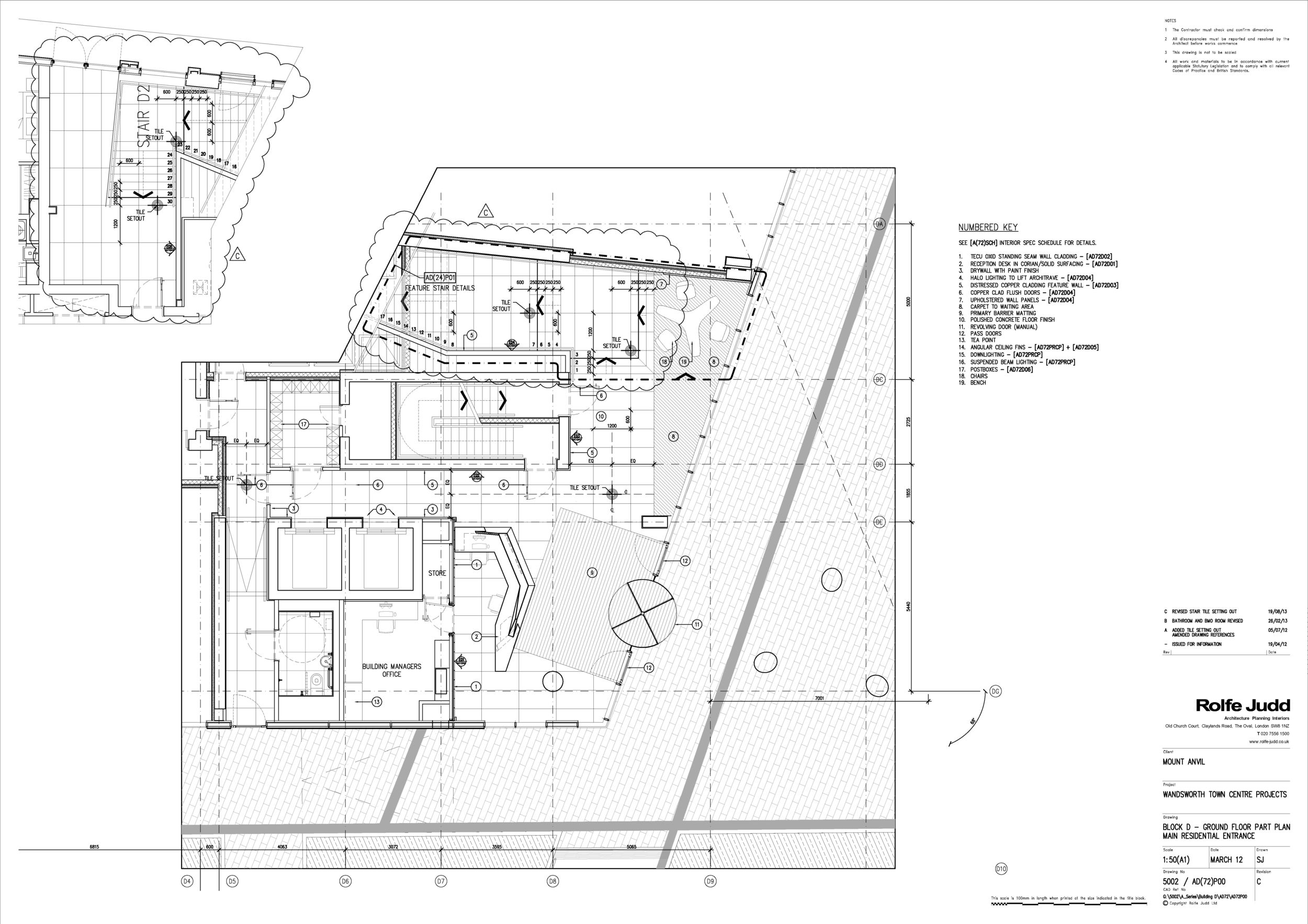
Wandsworth Town Center

Interior Architectural Designer

Large residential development in Wandsworth with 416 residential units, commercial & retail (8000m²)

Won competitive pitch for concierge and common areas packages

Reflected site history in design language and materials

Modelled and animated 3D design concepts

Produced tender and construction package information

WTC Concierge (1 of 10).jpg
WTC Concierge (3 of 10).jpg
WTC Concierge (2 of 10).jpg
WTC Concierge (4 of 10).jpg
WTC Concierge (6 of 10).jpg
WTC Concierge (5 of 10).jpg
WTC Concierge (11 of 1).jpg
WTC Concierge (7 of 10).jpg
WTC Concierge (8 of 10).jpg
WTC Concierge (9 of 10).jpg
WTC Concierge (10 of 10).jpg
 Daytime view of external ceiling fins and lighting.
 Fins resolve into angular planes when viewed at right angles.
 Worked with lighting designer to achieve a dappled effect.
Wandsworth Town Center
 Wide angle view of concierge.
Wandsworth Town Center Design
Presentation Design Boards
Wandsworth - Design Development_Page_03.jpg
Wandsworth - Design Development_Page_04.jpg
Wandsworth - Design Development_Page_05.jpg
Wandsworth - Design Development_Page_06.jpg
Wandsworth - Design Development_Page_07.jpg
Wandsworth - Design Development_Page_08.jpg
Wandsworth - Design Development_Page_09.jpg
Wandsworth - Design Development_Page_10.jpg
Wandsworth - Detailed Design_Page_10.jpg
Wandsworth - Detailed Design_Page_11.jpg
Staircase Design Development
Wandsworth - Detailed Design_Page_13.jpg
Technical Drawings
Wandsworth - Detailed Design_Page_02.jpg
Wandsworth - Detailed Design_Page_03.jpg
Wandsworth - Detailed Design_Page_04.jpg
Wandsworth - Detailed Design_Page_05.jpg
Wandsworth - Detailed Design_Page_06.jpg
Wandsworth - Detailed Design_Page_07.jpg
Wandsworth - Detailed Design_Page_08.jpg
Wandsworth - Detailed Design_Page_09.jpg